- 浩辰CAD如何插入高清图片 01-19 10:40
- C4D怎么建模箱子 03-29 09:02
- C4D怎么创建镂空手环模型 03-29 08:15
- sketchup道路怎么种树 03-28 09:38
- Cinema 4D怎么把坐标轴移回到物体中心 03-28 09:09
- C4D怎么使用断开连接抠出模型中的一个面 03-28 08:57
- Cinema 4D目标聚光灯怎么用 03-27 08:56
- Cinema 4D立方体怎么制作倒角 03-27 07:50
浩辰CAD如何快速完成物料表制作,这个操作步骤是非常复杂的。本文为大家带来详细的制作教程分享,快一起来看看下面的详细介绍吧!
浩辰CAD表格制作功能
在浩辰CAD命令行输入【TABLE】或者在菜单栏绘图中选择表格弹出插入表格对话框。设计师可对表格样式进行新建或者修改,如表格方向、单元样式、常规、文字、边框、间距等进行选择和修改。
对插入表格的选项进行相应选择后,可画出相应样式的表格。插入表格后,双击表格空白处,可对文字格式等进行选择。
单击表格可以编辑表格行宽、列高等。点击右边三角则可以拉伸表格。
如需把两个表格进行合并时,可选择单元格后,鼠标右键调出对话框,选择【合并】—【全部】即可。
单击表格空白处,可以进行插入行、插入列、填充颜色等操作。
浩辰CAD机械BOM物料表功能
在浩辰CAD机械中选择【序号】,在弹出的对话框中选择序号类型并进行标注。明细表可根据装配图中,零件所对应的序号快速生成。若想编辑明细表,可双击明细表头,调出明细表编辑对话框来进行编辑。同时也可单击相应的序号来完成对单个零部件明细的快速编辑。
同时也可快速导入、输出已有的明细表数据。点击明细表左下角【导入】、【导出】按钮来完成CAD与EXCEL表格之间的数据交互。

浩辰3D BOM物料表功能
在浩辰3D的主页面单击【文件】菜单—【打开】,并在弹出的文件浏览器中选择需要导入的零件文件。
通过浩辰3D快捷菜单中的【从当前模型创建新图纸】,选择工程图的模板来一键生成模型的工程图。浩辰3D能自动将模型的各种属性带入工程图,方便属性调用,还可通过视图向导菜单对工程图的布局样式、视图方向、比例、着色等内容进行快捷设置。

通过浩辰3D工程图界面的【注释】菜单,点击【零件明细表】读取需要生成BOM的图形,并可点击【属性】来设置不同样式、不同内容、不同规格的BOM表。尤其是在设计模型时设置了大量的属性,例如项目、名称、规格、版本、外形尺寸、材料、单重、表面处理、类别、单机数量、设计、备注等等,都可通过【列】来调整。

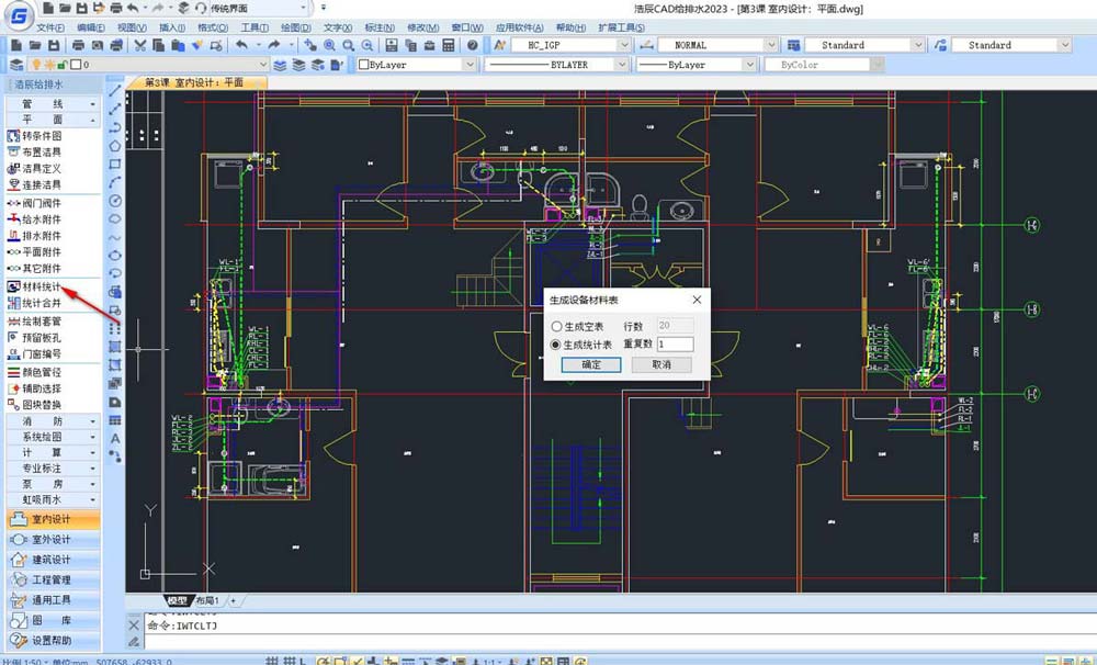
浩辰CAD建筑BOM物料表功能
点击浩辰CAD建筑工具箱材料统计功能后,框选需要统计范围,并左键选择表放置位置。

统计合并可将两个设备表中材料进行统计,合并成一张表格。
81.06MB / 2026-03-27
391.16MB / 2026-03-27
135.91MB / 2026-03-27
153KB / 2026-03-27
12.99MB / 2026-03-27
2.18MB / 2026-03-27
27.96MB
2026-03-27
101.45MB
2026-03-26
153KB
2026-03-27
111.65MB
2026-03-26
11.58MB
2026-03-27
437.99MB
2026-03-27
84.55MB / 2026-03-23
248.80MB / 2026-02-07
2.79MB / 2025-10-16
63.90MB / 2025-12-09
1.90MB / 2025-09-07
210.99MB / 2025-06-09
374.16MB / 2025-10-26
京ICP备14006952号-1 京B2-20201630 京网文(2019)3652-335号 沪公网安备 31011202006753号违法和不良信息举报/未成年人举报:legal@3dmgame.com
CopyRight©2003-2018 违法和不良信息举报(021-54473036)400-105-5185 All Right Reserved